网站首页 行业快讯 > 正文
现代极简中式装修(118㎡新中式,现代极简的硬装)
在这套118平米的房子装修中,空间整体以现代简约的大方格调,通过在家居与细节处加入端庄的中式元素,呈现出一种简洁大方而自然的禅意与雅韵,在这个静雅轻松的空间下,结合质朴端庄的中式气质,给人以安静从容的惬意感。
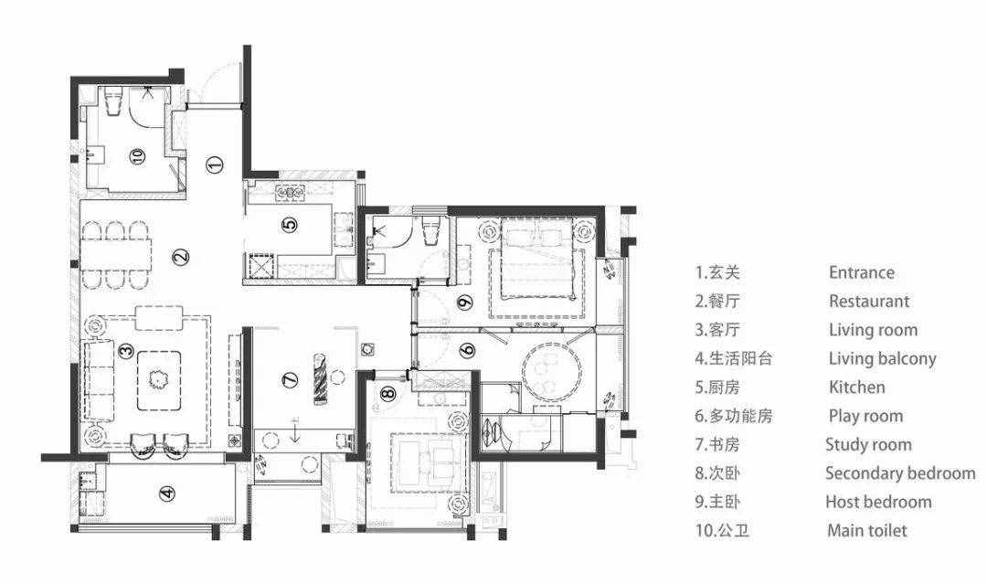
平面布置图

客厅
一日之计在于晨,朝露伴随着阳光一起迎接新的生活。同时加入素雅的室内墙体、大理石地板的铺设,多处的植物装饰进行点缀,让中式古典装修风格的传统意蕴从细节上凸显主人生活的典雅与高贵。

▲在这个新中式的客厅,罕见地在新中式风格空间里采取了无主灯的设计,电视墙加入大理石背景墙的设计,布置上深木色的电视柜,布置花瓶与装饰画,带来一种现代高级的端庄与优雅感。

▲灰色硬包背景的沙发墙,挂一幅横幅装饰画,搭配整体中式元素的家具与细节,也显得简约舒适而大气。

▲边几上布置中式小鸟笼与盆景,上方一盏吊灯设计,也让空间充满端庄精致的儒雅气质。



▲朴素的布艺沙发,布置上中式盆景、茶盘、抱枕与凳子等细节,在简约舒适的空间下,铺叙出一种端庄高级的中式雅韵感。

▲靠窗位置布置一张休闲沙发与小茶几,也提供了一个惬意轻松的休闲一隅。
餐厅

▲餐桌连贯着客厅空间,餐厅背景墙一幅圆形的挂画,结合餐桌上方一排气球状的玻璃灯泡,也使得用餐空间更加温情华丽而高级精致。

▲“民以食为天”,中式设计中,餐厅与餐桌的布置设计,是一种家的温馨的象征,石材餐桌+实木架的布艺餐椅,餐桌上布置精致的餐具与花瓶,花瓶插上丹红的插花,让用餐氛围温馨而又成熟端庄。


▲诗意情趣的挂画,餐桌上精致的餐具杯具,也让用餐氛围更加儒雅气质。
茶室

▲独立的茶室空间,为主人提供一个品茶的空间,三五好友,在闲暇时光聚在这个小空间,休闲聊天,惬意自然。

版权说明: 本文由用户上传,如有侵权请联系删除!
猜你喜欢:
- 2022-09-20 男人恶心是什么病的前兆(恶心是什么病的前兆)
- 2022-09-20 山东财经大学东方学院考研率怎么样(山东财经大学考研率是多少)
- 2022-09-20 广西最早的大学叫什么大学(在桂林设立的广西最早的大学是哪所大学)
- 2022-09-20 小儿肺炎有5个常见症状吗(小儿肺炎有5个常见症状)
- 2022-09-20 m是哪个服装品牌的标志(标志为M的衣服是什么牌子的)
- 2022-09-20 什么叫正比例什么叫反比例举例说明(什么叫反比例,举个例子说明,)
- 2022-09-20 一包烟要多少根烟丝(一包烟要多少根)
- 2022-09-20 男人吃樱桃对身体有什么好处(男人吃樱桃有什么好处)
最新文章:
- 2023-07-02 怎样挑选新鲜的猪肝?(怎么挑选新鲜猪肝 挑选新鲜猪肝的小技巧)
- 2023-07-02 木地板都有哪些种类(木地板的种类有哪些)
- 2023-07-02 白蜡木家具的优缺点(松木家具的优缺点)
- 2023-07-02 怎么清洗窗帘布上的污垢(怎么清洗窗帘)
- 2023-07-02 世界上最可爱的小仓鼠的样子(可爱小仓鼠的种类)
- 2023-07-02 小猫拉不出来屎怎么办(小猫拉不出屎怎么办)
- 2023-07-02 新飞小冰箱耗电量一天多少度(小冰箱耗电量一天多少度)
- 2023-07-02 公司注销工业房产怎么办手续(公司注销工业房产怎么办)
- 2023-07-02 凤凰层到底好还是不好(凤凰层是哪一层)
- 2023-07-02 马桶宽度空间留多少(马桶两边的空间大小是多少)
- 2023-07-02 如何训练猫咪小便(如何训练猫大小便)
- 2023-07-02 卫生间吊顶防潮层做法图集(卫生间吊顶方法是什么)
- 2023-07-02 狗狗为什么总是流口水怎么办(狗狗为什么爱流口水)
- 2023-07-02 卧室窗户漏水由谁负责维修(卧室窗户漏风怎么办)
- 2023-07-02 世界名猫大全(世界名猫你知道几种)
- 2023-07-02 applewatchseries7和6对比(apple watch series 7和6的区别)
